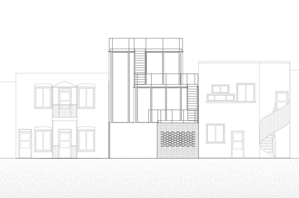
En plein cœur du quartier Mile-Ex à Montréal, le duplex multigénérationnel se fragmente en 3 blocs distincts accueillant respectivement deux couples et un atelier. Le rez-de-chaussée, entièrement en brique, s'isole afin de préserver l'intimité au niveau de la rue, tandis que les étages, entièrement vitrés, baignent l'ensemble des espaces de lumière. La décroissance évidente des blocs s'opère afin de s'adapter au contexte et à l'espace nécessaire au programme.












